中古一戸建て
木造瓦葺 2階建て
前橋市富士見町時沢の中古一戸建て
静かな住環境×充実リフォーム
(株)群馬総合土地販売 前橋店
TEL 027-243-8811
ID: 31294


| 価格 | 1,475万円 |
|---|---|
| 所在地 | 群馬県前橋市富士見町時沢 |
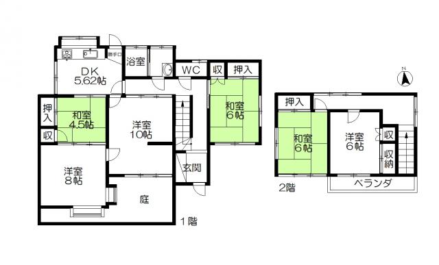
| 間取り | 6DK |
| 土地面積 | 197.80㎡(59.83坪) |
| 建物面積 | 116.13㎡(35.12坪) |
| 築年月 | 1971年4月 |
| 交通 | JR上越線「群馬総社」駅 約8km |
|---|---|
| 小学校区 | 前橋市立時沢小学校 |
| 中学校区 | 前橋市立富士見中学校 |
| 建物構造 | 木造瓦葺 |
| 階建て | 2階建て |
| 地目 | 宅地 |
| 都市計画 | 非線引区域 |
| 建ぺい率 | 50% |
| 容積率 | 100% |
| 引渡し条件 | |
| 現況 | 空家 |
| 水道 | 公営 |
| 電気 | 東京電力 |
| 下水 | 公共下水 |
| ガス | プロパンガス |
| 取引態様 | 仲介 |
| 備考 |
|
物件周辺地図
※詳細の場所についてはお問い合わせください。
お問い合わせ先
- (株)群馬総合土地販売 前橋店
- TEL 027-243-8811
- ID: 31294
- <住所> 群馬県前橋市本町2-3-1
- <定休日> 年中無休(年末年始・GW・お盆を除く) ※GW休業 5/3(日)~5/6(水)
- <営業時間> 10:00-17:00
- <免許番号> 国土交通大臣(6)5655
お問い合わせ
- 1.入力
- 2.確認
- 3.完了

